About this Property
Semi-Detached House – 3 Beds – 3 Baths
We bring to the market, this fantastic 3 bedroom semi-detached “A” Rated Home, with paved driveway & private rear garden.
The property is beautifully presented throughout, and is located in a much sought after development within walking distance of all the amenities of Ratoath Village.
€495,000
Semi-detached House
Ratoath
Meath
Property Features
- Natural Gas Fired Central Heating & Solar Panels
- Private Rear Garden
- Paved Driveway with EV Car Charger
- Garden Shed
- Alarmed
- Water Softener & Filter Tap
- Walking distance to Ratoath Village
- 5km from M2 & 9km from M3 Motorways
Services
Mains Water
Mains Sewage
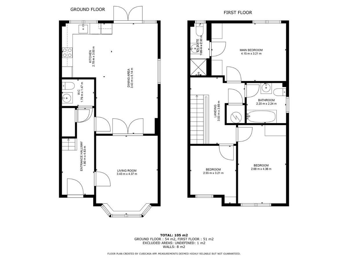
Accommodation Features
Entrance Hallway| 1.8m x 4.8m Wood flooring, coving, carpeted stairs
Kitchen/ Dining| 6.2m x 6.1m Wood flooring, downlighters, integrated fridge freezer, dishwasher, oven, hob & extractor hood, double doors to Living room, double patio doors to Garden
Living Room| 3.4m x 4.4m Wood flooring, double doors to Kitchen
WC| 1.8m x 1.5m Linoleum flooring
Landing| 3.0m x 3.6m Carpeted, hotpress, attic access
Bedroom 1| 4.1m x 3.2m Wood flooring, built in wardrobes
En Suite| 1.0m x 2.9m Linoleum flooring, tiled shower unit
Bedroom 2| 2.7m x 4.4m Wood flooring, built in wardrobes
Bedroom 3|2.5m x 3.2m Wood flooring
Bathroom| 2.2m x 2.2m Linoleum flooring, bath






















